ページの先頭です。 メニューを飛ばして本文へ
現在地 トップページ > テーマから探す > 県政情報 > 入札・公募・公売 > 県有財産(土地)の売却・貸付 > 大阪府吹田市山田西三丁目70番4(千里レックスマンションA棟501号室)

本文

大阪府吹田市山田西三丁目70番4(千里レックスマンションA棟501号室)

ページID:0803947 更新日:2026年2月16日更新 印刷ページ表示

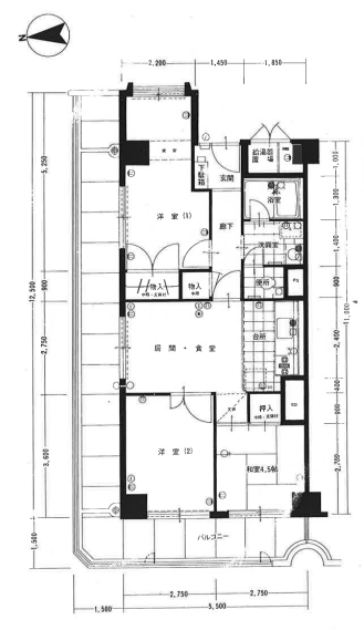
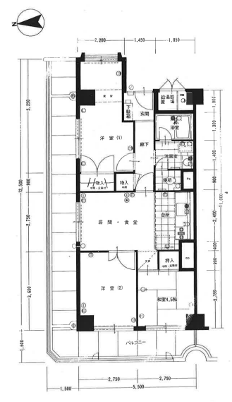
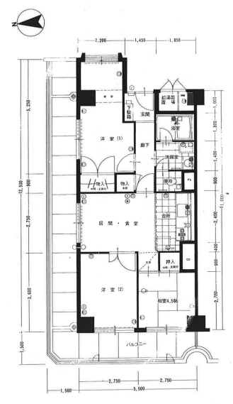
処分対象の県有財産(区分所有建物)です。

間取り図

皆様のご意見をお聞かせください。

お求めの情報が十分掲載されていましたか?
ページの構成や内容、表現は分かりやすかったですか?

※個人情報を含む内容は記入しないでください。
※お答えが必要なお問い合わせは、上の「このページに関するお問い合わせ先」からお問い合わせください。
※いただいたご意見は、より分かりやすく役に立つホームページとするために参考にさせていただきますのでご協力をお願いします。
※ホームページ全体に関するお問い合わせは、まで、お問い合わせください。

Adobe Reader
PDF形式のファイルをご覧いただく場合には、Adobe社が提供するAdobe Readerが必要です。
Adobe Readerをお持ちでない方は、バナーのリンク先からダウンロードしてください。(無料)